Type: Residential-Interior
Program: Single-Family Home
Location: Chicago, Illinois
Construction: InStyle Construction
Status: Completed 2020
Brief: Renovation of ground floor and basement, including custom cabinetry
Study Model
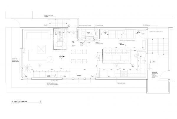
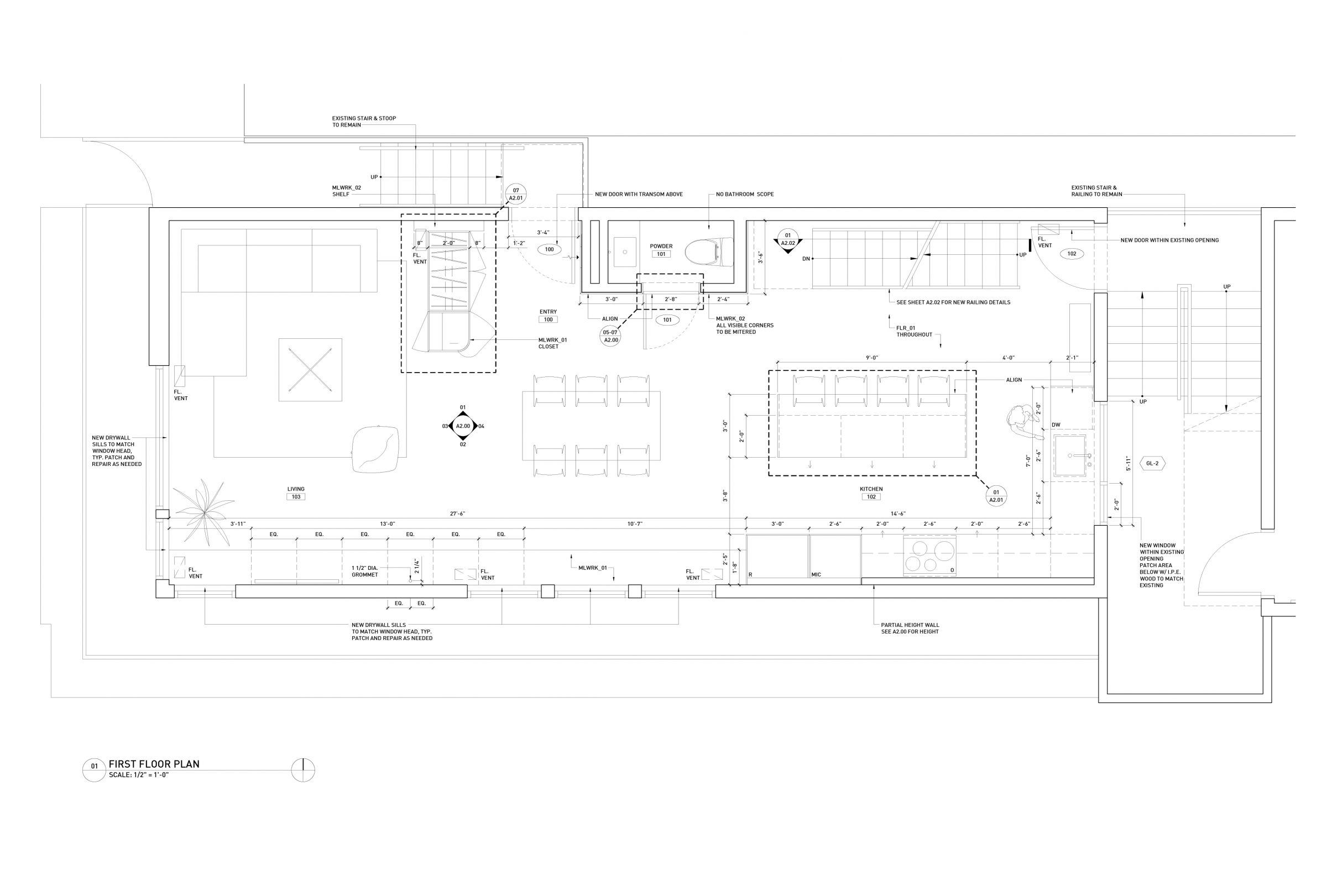
Proposed plan
Millwork details
Millwork Pattern Iteration
Construction
Island Detail © Mike Schwartz
Kitchen © Mike Schwartz
Stair Composition © Mike Schwartz
Stair Detail © Mike Schwartz
Utility Volume © Mike Schwartz
Entry Millwork © Mike Schwartz
Entry Millwork © Mike Schwartz
Millwork Detail © Mike Schwartz
Between the Millwork © Mike Schwartz