Type: Residential-Interior Remodel
Program: Single-Family Home
Location: Chicago, Illinois
Status: Completed 2013
Brief: Renovation of two distinct areas of a single family residence
Area of Work_Kitchen, Dining, Living
Study Model of Main Level
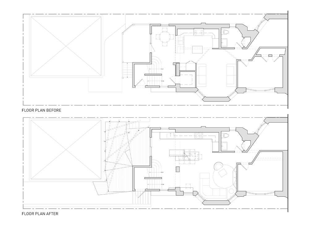
Floor Plans of Main Level
Prior Main Level Conditions
Construction of Main Level Renovation
Glass Steel Support Detail
View of Completed Renovation @ Mike Schwartz
View of Kitchen Island @ Mike Schwartz
Kitchen from Side Entry @ Mike Schwartz
Kitchen Cabinets Detail @ Mike Schwartz
Shelf Detail @ Mike Schwartz
Area of Work_Basement
Prior Basement Conditions
Basement Remodel
Living Area_Basement @ Mike Schwartz
Sleeping Platform @ Mike Schwartz
Shower and Vanity @ Mike Schwartz
Vanity Detail @ Mike Schwartz
Throughout its lifespan, this 20th century Chicago greystone, had gone through various modifications, primarily at the rear, where the kitchen is located. This resulted in small, compartmentalized spaces that were dark, awkward and limiting in circulation. The client asked us to address these issues and to rethink the space so that it can easily absorb the daily family activities.
Through the removal of most of the interior walls and the strategic placement of the living elements, we created openness and added an abundance of natural light. In doing so, we formed opportunities for movement throughout the most active part of this home. To further underscore the circulation, emphasis was placed on the visual and physical connections between the newly-defined kitchen, dining and family areas. The result is a light, contemporary expression placed in subtle contrast to the rest of the home, marking a significant moment in the thoughtful evolution of its interior.
The second part of our involvement was to create a guest suite in the unfinished part of the basement. As with the renovation to the upper level, the theme of continuity persists. However, the individual challenges of this particular space resulted in a slightly different expression. In configuring the space, we worked around the existing structural elements, incorporating them into the project to every extent possible and finding design opportunities amidst the awkward quirks. The uneven foundation walls, sloping floors and old, painted beams were the catalysts for the precise solutions that now appear coordinated and well arranged. In this simple juxtaposition of materials, color and natural light, we were able to compliment the natural beauty of some of these hundred-year-old building components, making the newly created guest suite feel as an oasis from the rest of the home above.