Type: Residential-Interior
Program: High-Rise Condo Unit
Location: Chicago, Illinois
Construction: J5th Custom Renovations
Status: Completed 2016
Brief: Renovation of a 750 SF space, including custom cabinetry and millwork
Program Components
Existing Plan
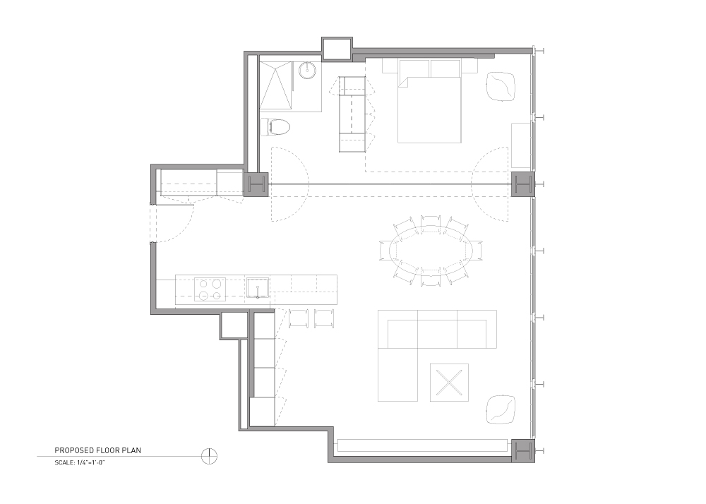
Proposed Plan
Diagrams
Interior Elevations
Pre-Existing Conditions
Construction: Layers
Construction: Bathroom
Construction: Touch Ups
Living Space © Bill Zbaren
Towards Kitchen © Bill Zbaren
Island Detail © Bill Zbaren
From Entry © Bill Zbaren
Island Corner © Bill Zbaren
Towards Sleeping Area © Bill Zbaren
Bathroom Wet Area © Bill Zbaren
From Shower © Bill Zbaren
Inside Sleeping Area © Bill Zbaren
Within this iconic high-rise unit, our clients imagined their second home with few boundaries between them and the exterior breathtaking views. By removing all of the opaque walls and introducing an architectural language of floating volumes and space-defining planes, we created the desired spatial experiences that did not previously exist.
At the entry, while drawing direct connections with the lake, we added an open kitchen creating a multi-functional space. To the right, the carefully placed floating mass welcomes you, gesturing towards the main room. As it extends deeper into the living space, a reading nook is formed at the back of the projection, offering a sense of refuge inside of an open plan. When sitting, this projected element transforms, reflecting the adjacent spaces within its carved niche.
The integration of a seemingly continuous glass plane provides privacy between the two primary living zones. However, its true function is to create a backdrop of illusion, capturing the expansiveness of the exterior, as well as the dynamic mood changes of the Great Lake.
In re-orienting the plumbing-dependent elements of both the kitchen and bath towards the lake, we physically and visually connected them with adjacently shared zones. Now, one can admire the sunrise while showering and absorbing the horizontal morning light.
While placing emphasis on the refined expression of the building’s minimalist tradition, a quiet living space is formed for contemplation and refuge in the sky.