Type: Workspace
Program: Open and Private Offices
Location: Chicago, Illinois
Status: Completed 2014
Brief: Rehabilitation and expansion of a 1000 SF office, including custom metal fabrication and millwork.
Design Approach Study Models
Office Organization Model
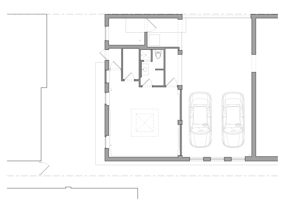
Floor Plan Before
Floor Plan After
Diagram: Binding Partition
Study: Screen Pattern
Open Workspace Elevations and Details
Previous Conditions: Exterior
Previous Conditions: Interior
Demolition
Demolition
Construction Transformation
View of Entrance Elevation © Mike Schwartz
View of Binding Partition © Mike Schwartz
View of Private Office © Mike Schwartz
Detail View of Desk © Mike Schwartz
View of Office from the Garage © Mike Schwartz
Garage View © Mike Schwartz
View of Open Workspace © Mike Schwartz
Detail View of the Screen © Mike Schwartz
A Chicago developer tasked us to create a new office atmosphere within an existing single story masonry shell. Our strategy was to place emphasis on the intrinsic character of materials used to build this simple box. First, we needed to uncloak its forgotten beauty, hidden behind the layers of old gypsum skin. Once the perimeter was brought back to life, we kept clear of it, and began to introduce the components needed for an everyday “office use”.
An oversized communal desk with integrated storage was placed in the center of the room. Structurally supported by two thin perforated metal screens, the desks appear to be cut into smaller segments, defining multiple work areas needed within the single shared space. These striking sheets of metal are designed to be visually intriguing, enhancing the raw qualities of an existing skin. To further separate the office from its adjacent zones, we introduced a continuous black “binding wall” snaking through various programmatic needs. Storage, mechanical closet and a private office are carefully sculpted within this single move. The lack of natural daylight in the space was solved through the placement of large panes of glass as separating walls, borrowing light and adding views throughout. In challenging the notion of private space, a sense of community is achieved, providing a collaborative environment within a shared workplace. Now the occupants are more connected with their immediate surroundings and feel much less divided and contained.