Type: Residential-Interior
Program: Mid-Rise Condo Unit
Location: Chicago, Illinois
Construction: In-Style Construction
Status: Completed 2024
Brief: Renovation of a 1,200 SF apartment, including custom cabinetry and millwork
Photographer: Mike Schwartz
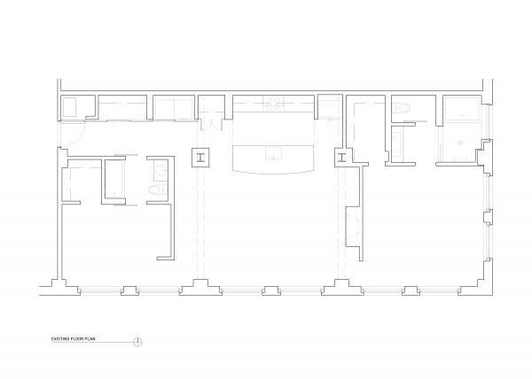
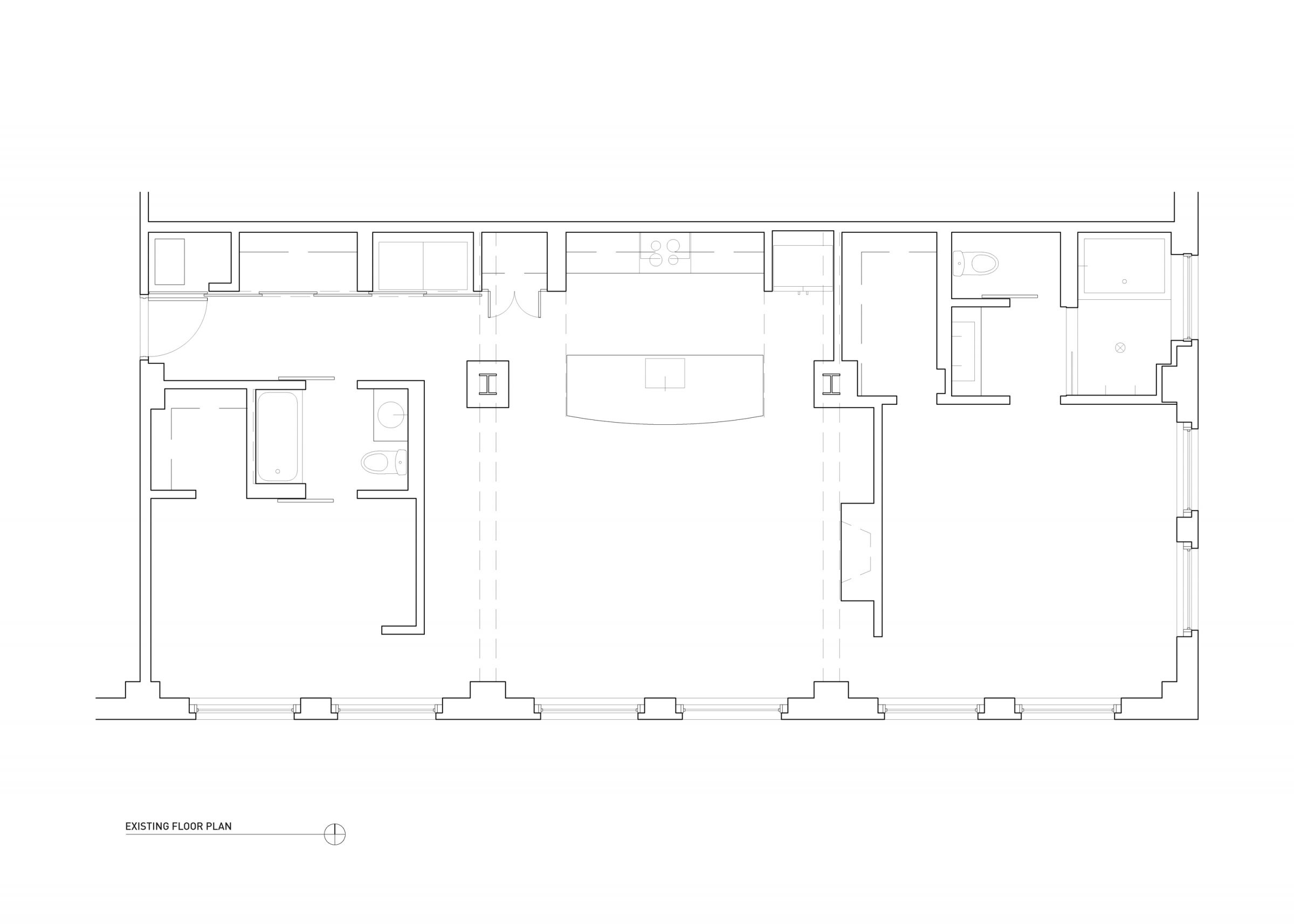
Existing Space
Original Plan
New Plan
Organization Diagram
Existing Space
Construction
Construction
Construction
Material Palette
Soffit Detail © Mike Schwartz
At Entry © Mike Schwartz
Secondary Bathroom © Mike Schwartz
Towards Entry © Mike Schwartz
Dining © Mike Schwartz
Towards Kitchen © Mike Schwartz
Kitchen © Mike Schwartz
Island Detail © Mike Schwartz
Kitchen © Mike Schwartz
Living Room © Mike Schwartz
Towards Dressing © Mike Schwartz
Dressing © Mike Schwartz
Millwork Detail © Mike Schwartz
Bedroom © Mike Schwartz
Bedroom © Mike Schwartz
Bedroom © Mike Schwartz
Primary Bathroom © Mike Schwartz
Bath Detail © Mike Schwartz
Originally a place for manufacturing car parts, this structure was altered and converted to residential use in the early 2000s. Two decades later, we were tasked to transform one of its 1,200 sq.ft. dwellings into a home that celebrates openness and light, creating an architectural dialogue between the building’s industrial past and the needs of contemporary living.
The design began with a careful study of existing conditions and an understanding of what could be modified within the constraints of a multi-unit building, while honoring the character that defines it. Central to this was the apartment’s unexpected fire-resistant clay tile ceiling, a poetic relic of its manufacturing past. Its irregularities and tonal variations became both inspiration and guide, shaping ideas that embrace its quirks and celebrate its tactile warmth.
Through close observations of how natural light interacts with space, we sought to free the apartment’s exterior walls for both optimal light and view. Along the north, the darkest perimeter, a continuous white surface was introduced to conceal most of the unit’s support elements. Storage, laundry, mechanical systems, and kitchen functions were carefully integrated within a single architectural gesture. This quiet intervention brightens the apartment’s deepest areas while visually balancing the weight and tonal warmth of the exposed brick and clay. At its center, a mirrored soffit extends outward to conceal the inherited plumbing risers, dissolving its necessity through reflections and illuminating the kitchen island below.
As the project unfolds spatially, the design logic continues to shape the dwelling’s organization. Upon entry, a floating white volume greets you, enclosing the secondary bath while drawing daylight deep into the plan through a precisely placed aperture. Beyond, a partial-height white oak box mediates between living and sleeping areas, integrating dual walk-through closets and allowing circulation to flow both around and through. In the bedroom, one discovers the white surface bifurcating into a full-height wall that ensures greater privacy while preserving the sense of visual and material harmony that unites the home.
Through this interplay of raw and refined, the project transforms constraint into a quiet composition of light, material, and space, creating a calm, cohesive interior where boundaries blur and domestic life unfolds seamlessly within the continuity of its industrial shell.