Type: Residential-Gut Rehab
Program: Single-Family Home
Location: Chicago, Illinois
Construction: Instyle Construction Inc.
Status: Completed 2017
Brief: Conversion of a multi-family two flat building into a single family residence
Existing Conditions: Exterior
Existing Conditions: Interior
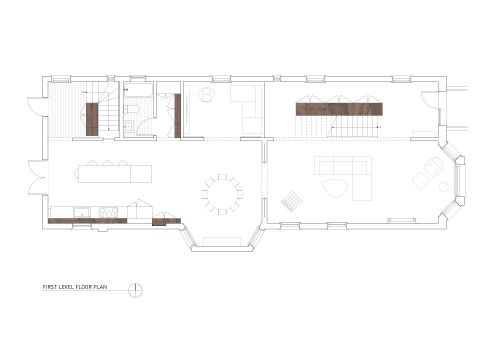
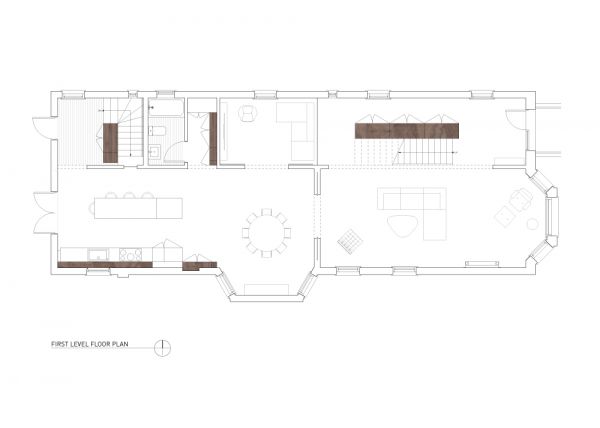
Proposed Plan: First Floor
Proposed Plan: Second Floor
Proposed Section
Skylight Study Model
Stair Assembly Diagram
Stair Construction
Stair Profile Mike Schwartz
Greeting at Entry Mike Schwartz
Kitchen View Mike Schwartz
Kitchen Detail Mike Schwartz
Towards Front Entry © Mike Schwartz
Upper Level Landing © Mike Schwartz
Upper Level Landing © Mike Schwartz
Upper Level Landing © Mike Schwartz
Upper Level Landing © Mike Schwartz
Master Bedroom Storage © Mike Schwartz
Maser Bedroom Entry Detail © Mike Schwartz
Master Bathroom © Mike Schwartz
Front Entry © Mike Schwartz
Front Elevation © Mike Schwartz
Being tasked with converting this 100 year-old dilapidated Chicago two-flat into a single family home gave us an opportunity to respond to a question: How does one preserve and integrate the intangible building qualities of yesterday and today, while breathing new life into an existing derelict shell? Our approach to the question entailed observing the existing “heaviness” of both material and space, considering the juxtaposition of restraint and ornamental excess, exploring qualities of openness alongside compartmentalization, and superimposing old craft with new traditions.
Furthermore, our interest in “phenomenal transparency” as a space-organizing strategy was tested here both in section and plan. Newly-introduced walnut millwork elements were programmed as stairs, walls and storage; these elements physically and visually cut through space, connecting rooms and their adjacent zones. Salvaged old doors, hardware, and trim were seamlessly integrated with the new architectural language, keeping the design composition cohesive, and merging past and present together as one articulated thought. The result is a home that is light, connected, and fully functional for a growing family. The project thus introduces new spatial meaning into an early 20th century building, melding qualities from the past with a design logic and lifestyle for today.