Type: Multi Family - New Construction
Program: 4 Duplex and 4 Simplex Units with Parking
Location: Chicago, Illinois
Client: Ranquist & Spartan Development Groups
Construction: MC Construction Group
Status: Completed 2019
Brief: New 14,000 SF Eight-Unit Condominium Building
Site Location
Organization Model
Organization Diagram
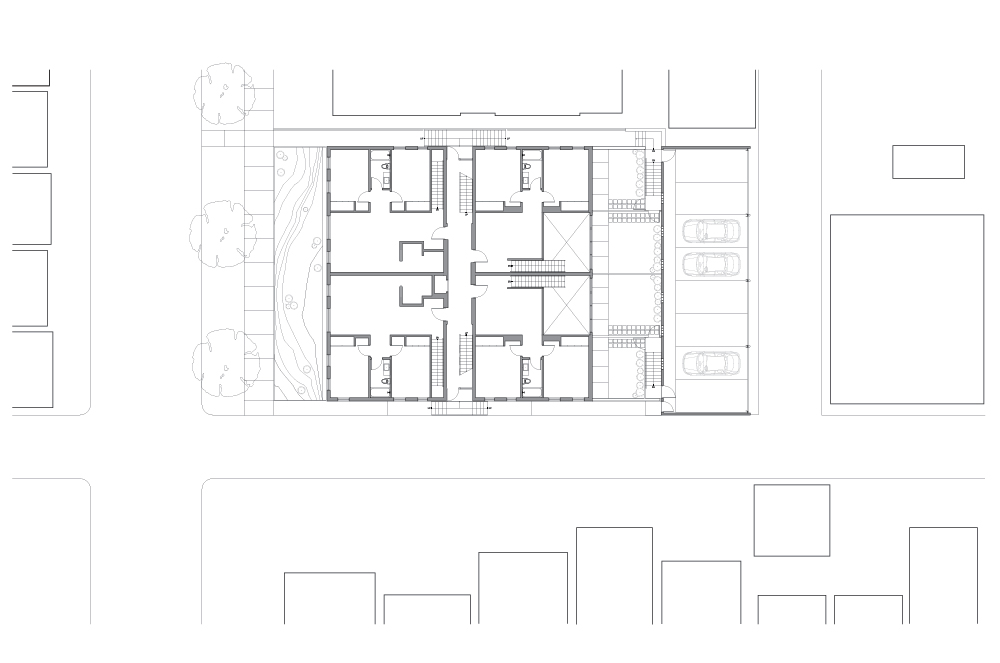
Site Plan
Longitudinal Section
Cross Section
Building Materials
Proposed Street View
Lower Units Interior View
Lower Units Interior View
Lower Units Interior View
Upper Units Interior View
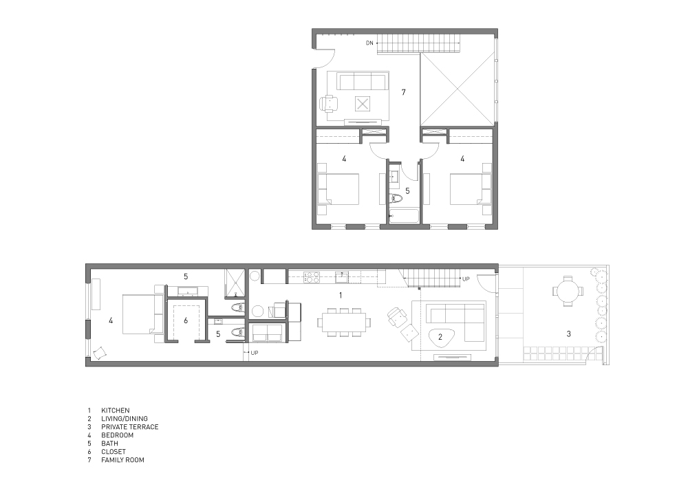
Lower Units Floor Plan
Lower Units Floor Plan
Upper Units Floor Plan
Construction: Excavation
Construction: Foundation
Construction: Masonry
Construction: Masonry
South Facade Day © JC Buck
South Facade Dusk © JC Buck
East Facade © JC Buck
East Facade © JC Buck
East Entry © JC Buck
Northeast Corner © JC Buck
South Facade © JC Buck
View from Roofdeck © Mike Schwartz
Common Stair © Mike Schwartz
Upper Unit Deck © Mike Schwartz
Upper Unit Deck © Mike Schwartz
Lower Unit Kitchen © Mike Schwartz
Upper Unit Bedroom © Mike Schwartz
Northwest Corner © Mike Schwartz
The 2016 West Rice residences are located in the heart of one of the Chicago’s oldest established neighborhoods, Ukrainian Village. Comprised of 4 uniquely configured duplexes with 4 single story units stacked above, this 8 unit residential typology is a design response to our client’s requirement to maximize the site’s buildable area.
This contemporary building development attempts to mark its place in time, exemplifying architecture expression for its immediate surrounding as well as the greater city context.
The building is organized as a small community of individual dwelling units wrapped in one contiguous skin. Unlike a single-family home, each residence is designed with at least three distinct orientations and an abundance of outdoor space, maximizing daylight and cross breezes throughout the day. The outward appearance of this building is a direct result of strategic interior planning, with two large cubic voids defining large terraces starting at the second floor. In these voids, the articulated steel balconies and stairs are nested, echoing Chicago’s infamous fire escapes and adding visual relief at the SE and NW corners of the site. Large, punched window openings in the building’s corrugated metal skin appear more as perforations within the overall mass, perceptively reducing the building scale amongst its fellow neighbors. Selected for its reflective qualities, the exterior cladding produces a dynamic play of light and shadow across all façades, highlighting atmospheric changes brought forth by the seasons and throughout the day.